Update • 3/10/23
Join us for our Holyland Food Pantry Open House located at W929 Kiel Road (Marytown). The event will be held April 15th from 11:00-2:00 (Ribbon Cutting at 1:00).
We will be holding a brat fry, raffling baskets, and providing pantry tours. This event will be open to the public. Without support from the community, this would not be possible. So thank you and let's celebrate this wonderful accomplishment together!
We will be accepting food donations that day, stay tuned for April's Needs List.
Update • 12/13/22
We are excited to announce that the building is ready and December Distribution will be at the new location of the Holyland Food Pantry.
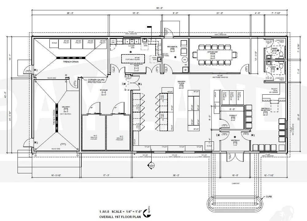
Reception Area
Shopping Area
Storage Area and Scale
Update • 9/28/22
Update • 9/1/22
Update • 8/30/22
Inside framing has started
Update • 8/20/22
Ready for roof, sidewalls and light poles
Update • 8/12/22
Update • 7/15/22
Grass planted around retention pond
Walls are poured
Update • 6/22/22
Update • 5/28/22
GROUNDBREAKING NEWS
Shovels broke ground on the new Holyland Food Pantry being built on Kiel Road in Marytown this week!
This milestone event begins the construction of a new 3,500 sq. ft. facility that will increase storage space, accommodate bulk commodities, and will be zoned as commercial to access federal and state government food programs for meat, produce, and dry goods to continue our mission.
THANK YOU to the many volunteers, donors, and our community for coming together in 18 months to "Feed our Future." Amazing things happen when we all work together!
Watch this page over the upcoming months to see this project progress
HFP Board of Directors
HFP Building Committee
Valued HFP volunteers
Gracious HFP Donors
Catholic Financial Life
Michels Family Foundation - Megan Bonlender & Nate Redig
Let’s celebrate!
Update • 4/22/22
We are beyond excited that the time has finally come and we welcome the public to the groundbreaking ceremony:
Monday, May 23rd at 3:00 pm at the new location at W929 Kiel Road, Marytown
Update • 1/28/22
As published in the Tri-County News on 1/27/22
Update • 11/1/21
IMPORTANT UPDATES!!
Bayland Building Contractors have been selected as the General Contractor
Site engineering is complete and State and local permitting has begun
We continue to work towards closing the funding gap, having raised 90% of the necessary funds to be debt-free
Update • 9/29/21
Update • 8/18/21
We recently sent out a mailer detailing the progress of our Feed Our Future Campaign. Because of higher than normal costs of construction materials, the original amount of $500,000 that was raised is not sufficient and we need to raise additional funds. Please check your mail and consider helping us reach our next milestone.
Click the button below for a copy of the mailer or visit the Donate page to make a donation.
Update • 6/10/21
Thanks to the generosity of many individuals, organizations, and businesses in just six months we have raised and received the $250,000 required to reach our next milestone and receive the matching grant. Thank you to all that donated!
Keep track of the capital campaign fundraising progress as we strive to "Feed Our Future." Each section of the garden represents $10,000 raised and received toward our goal of $250,000. (We have received confirmation of a matching $250,000 Pledge if we raise the other $250,000.) Help us “grow our garden” by donating to the capital campaign today! Big thank you to Ashley Puetz for creating this amazing progress image!
 
                         
             
             
             
             
             
             
             
             
             
             
             
             
             
             
             
             
             
             
             
             
             
             
             
             
             
             
             
             
            